Gemütliche Erdgeschosswohnung in den Pagodenhöfen im Herzen von Emden - KfW 40 QNG-Zertifikat!












Objektart
Wohnung
Objekttyp
Erdgeschoss
Vermarktungsart
Kauf
PLZ
26721
Ort
Emden
ImmoNr
1024_1
Wohnfläche
ca. 69 m²
Anzahl Zimmer
2
Anzahl Badezimmer
1
Kaufpreis
342.500,00 €
Außen-Provision
3,57% inkl. gesetzl. MwSt.
Baujahr
2024
Energieausweis
es besteht keine Pflicht!
Beschreibung
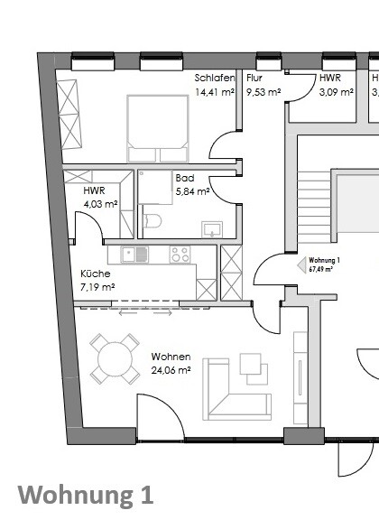
Willkommen in Emden, eine Stadt mit hervorragender Lebensqualität. In der Abdenastraße 2 / Mühlenwarf 8 entsteht ein modernes Neubauprojekt, die Pagodenhöfe.Zum Verkauf steht hier eine attraktive Neubau-Erdgeschosswohnung eines gepflegten Mehrfamilienhauses in Emden mit insgesamt 9 Wohneinheiten. Mit einer angenehmen Wohnfläche von ca. 69 m² bietet diese Wohnung idealen Wohnkomfort für Singles, Paare oder kleinere Familien.
Die Wohnung überzeugt durch ihre durchdachte Raumaufteilung und die hochwertigen Ausstattungsmerkmale, die sich in jedem Detail widerspiegeln. Die Küchenbereich ist perfekt in den Wohnbereich integriert und kann durch eine Schiebetür geschlossen werden. Somit lässt diese Wohnung keine Wünsche offen. Das Badezimmer wird modern gestaltet und mit eleganten Fliesen ausgestattet.
Ein weiterer Vorteil ist die ruhige und dennoch zentrale Lage in Emden.
Ob als eigene Wohlfühloase oder als attraktive Kapitalanlage – diese Wohnung bietet zahlreiche Möglichkeiten.
Noch können Sie außerdem wählen zwischen Erd - Ober - oder Dachgeschoss.
Im Einzelnen wie folgt:
Whg. 1, EG, 69,18 m²
Whg. 2, EG, 74,54 m²
Whg. 3, 1. OG, 72,45 m²
Whg. 4, 1. OG, 83,40 m²
Whg. 5, 2. OG, 72,45 m²
Whg. 6, 2. OG, 83,40 m²
Whg. 7, 3. OG, 73,75 m²
Whg. 8, 3. OG, 75,83 m²
Whg. 9 Penthouse, DG, 97,80 m²
Dieses Neubau-Mehrfamilienhaus wird nach dem Energieeffizienzhaus 40 Standard errichtet und erfüllt somit höchste Ansprüche an Energieeffizienz und Nachhaltigkeit. Das QNG-Siegel (Qualitätssiegel Nachhaltiges Gebäude) bestätigt die umweltfreundliche Bauweise und sorgt für niedrige Betriebskosten, was sowohl für Eigentümer als auch für Mieter von großem Vorteil ist. Das bedeutet für Sie als Investor Gutes zu tun und dringend benötigten Wohnraum zu schaffen mit der Möglichkeit im Gegenzuge die dafür vorgesehenen steuerlichen Vorteile des Wachstumschangengesetzes zu nutzen.
Sprechen Sie hierfür Ihren Steuerberater auf Ihre individuelle Situation an.
Lage
Emden: Eine Perle an der NordseeküsteWillkommen in Emden, einer charmanten Stadt, die Tradition und Moderne auf harmonische Weise vereint. Gelegen an der Nordseeküste, bietet Emden nicht nur eine idyllische Landschaft, sondern auch ein reichhaltiges kulturelles Erbe und eine hervorragende Lebensqualität.
Lebensqualität und Infrastruktur
Emden überzeugt durch ihre hervorragende Infrastruktur. Mit gut ausgebauten Verkehrsverbindungen, sowohl für Auto- als auch für Bahnreisende, ist die Stadt bestens erreichbar. Einkaufsmöglichkeiten, Schulen und medizinische Einrichtungen sind in unmittelbarer Nähe und gewährleisten einen hohen Lebensstandard.
Kulturelle Vielfalt
Die Stadt ist bekannt für ihre vielfältigen Freizeitmöglichkeiten. Museen, Kunstgalerien und historische Sehenswürdigkeiten, wie das Emder Rathaus und die sehenswerte Alte Kirche, laden zu Erkundungen ein. Die jährlichen Veranstaltungen, wie das Emder Stadtfest und der Weihnachtsmarkt, bringen das Gemeinschaftsleben in der Stadt zum Blühen.
Natur und Erholung
Die Lage am Wasser und die umliegende Natur bieten zahlreiche Möglichkeiten für Outdoor-Aktivitäten. Ob Radfahren entlang der Ems, Spaziergänge im Grünen oder Ausflüge zu den nahegelegenen Inseln – Emden ist ein Ort, der sowohl Ruhe als auch Abenteuer bietet.
Karte
Ausstattung
Diese Wohnungen zeichnen sich durch folgende Ausstattungsmerkmale aus:- KfW 40 QNG- Zertifikat
- Übergabe schlüsselfertig und Zahlung nach Makler- und Bauträgerverordnung (MaBV)
- PV-Anlage
- Luft-Wasser-Wärmepumpe
- Beheizung der Räume mittels Fußbodenheizung
- 2-4 ZKB-Wohnungen
- Wohnungsgrößen zwischen 69-97 m²
- große Penthouse-Wohnung
- Fahrstuhlanlage
- hochwertige Ausstattung der Wohnungen
- maximlaler Wohnkomfort durch lichtdurchflutete Räume
- jeder Wohnung ist ein Pkw-Stellplatz zugeordnet
Fertigstellung Dezember 2025.
NEU seit 2023: mit einer sog. QNG-Zertifizierung können Sie für Mietwohnungsneubauten die Sonderabschreibung nach § 7b EStG mit 5 % für vier Jahre und die neue degressive Abschreibung nach § 7 Abs. 5a EStG mit 5 % kombiniert in Anspruch nehmen, die Abschreibung nach § 7 Abs. 5a EStG mit 5 % wird vom Restwert vorgenommen, so dass in den ersten 4 Jahren ca. 37 % der Herstellungskosten abgeschrieben werden. Für die ersten 10 Jahre beträgt das Abschreibungsvolumen ca. 53,75 %
Sonstige Angaben
Durch den KfW 40 und QNG Standard profitieren Sie von den aktuellen KfW Kreditkonditionen, von der steuerlichen Abschreibung (AfA) und einer zusätzlichen Sonderabschreibung. Sollten Sie Ihre Steuerlast optimieren wollen, ergibt sich in den ersten vier Jahren jedes Jahr eine kombinierte Abschreibung aus der degressiven AfA und der Sonderabschreibung von ca. 10 % auf die Herstellungskosten bezogen auf den jeweiligen Restwert Ihrer Immobilie.Sprechen Sie uns gerne an, wir stellen mit Ihnen die notwendigen Unterlagen für Ihre Bank und Ihren Steuerberater zusammen. Die PL Living Immobilien und Handels GmbH übernimmt keine steuerrechtliche Beratung. Begleitet Sie aber gerne zu Ihrem Steuerberater oder stellt eine Empfehlung aus unserem umfangreichen Netzwerk an Beratern aus.
Als Immobilienmakler sind wir nach dem Geldwäschegesetz (GWG) verpflichtet, Vertragspartner mittels gültigen amtlichen Ausweises, der ein Lichtbild enthält und mit dem die Pass- und Ausweispflicht im Inland erfüllt wird, zu identifizieren. Bitte haben Sie daher dafür Verständnis, dass wir spätestens beim Besichtigungstermin eine Ablichtung Ihres Personalausweises benötigen. Gemäß § 11 Abs. 2 GWG hat diese Identifizierung zu erfolgen, sobald die Parteien des avisierten Kaufvertrages ernsthaftes Interesse am Abschluss haben.
Die Objektdaten, die sie in unserem Exposé finden, stammen vom Eigentümer. Eine Gewähr für die Richtigkeit und Vollständigkeit der Angaben können wir nicht übernehmen. Die Bilder sind somit rechtlich nicht bindend und nicht Bestandteil des Kaufvertrages. Änderungen und Irrtümer sind vorbehalten. Eine Gewähr für die Richtigkeit und Vollständigkeit der Angaben können wir nicht übernehmen.
Der Maklervertrag mit uns kommt durch schriftliche Vereinbarung oder durch die Inanspruchnahme unserer Maklertätigkeit zustande. Die Höhe der Provision liegt bei 3,57% inkl. gesetzl. MwSt. für jeweils den Käufer und Verkäufer und ist mit dem notariellen Kaufvertragsabschluß verdient und fällig.
Jetzt Exposé anfordern!
Seiten: 1