Exklusives Penthouse in den Pagodenhöfen- KfW 40 QNG-Zertifikat! Kapitalanlage oder Eigennutzung!

































Objektart
Wohnung
Objekttyp
Etagenwohnung
Vermarktungsart
Kauf
PLZ
26721
Ort
Emden
ImmoNr
1024_9
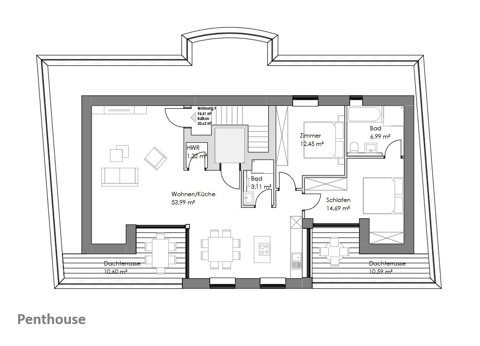
Wohnfläche
ca. 98 m²
Anzahl Zimmer
3
Anzahl Badezimmer
1
Kaufpreis
699.000,00 €
Außen-Provision
3,57% inkl. gesetzl. MwSt.
Baujahr
2025
Energieausweis
es besteht keine Pflicht!
Beschreibung
Erleben Sie Luxus pur in diesem exklusiven Penthouse der Pagodenhöfe, das keine Wünsche offenlässt.Auf ca. 98 m2 Wohnfläche verteilen sich drei großzügige Zimmer, die eine elegante und moderne
Raumgestaltung bieten. Das Highlight dieser Immobilie sind die beiden Balkone, die Ihnen einen
atemberaubenden Ausblick und viel Raum für Entspannung im Freien bieten.
Das Penthouse besticht durch seine hochwertige Ausstattung und durchdachte Architektur, die Komfort
und Stil miteinander vereint. Die großzügigen Fensterflächen sorgen für viel Tageslicht und eine
offene, lichtdurchflutete Atmosphäre. Der offene Wohn- und Essbereich bietet direkten Zugang zu
einem der Balkone und ist mit einer hochwertigen Einbauküche mit Küchenblock ausgestattet. Die beiden Schlafzimmer sind großzügig geschnitten und bieten viel Raum für
persönliche Gestaltung.
Ein besonderer Komfort ist der direkte Zugang zur Wohnung über den Fahrstuhl, der Sie exklusiv in
Ihr neues Zuhause bringt – für maximale Privatsphäre und Bequemlichkeit. Die moderne Bauweise
garantiert nicht nur eine hohe Energieeffizienz, sondern auch eine langfristige Werthaltigkeit der Immobilie.
Die Lage dieses Penthouses in Emden bietet Ihnen eine perfekte Kombination aus urbanem
Lifestyle und ruhigem Wohnen.
Dieses Penthouse ist nicht nur ein exklusives Zuhause für anspruchsvolle Käufer, sondern auch eine
ideale Investition für Kapitalanleger.
Dieses Neubau-Mehrfamilienhaus wird nach dem Energieeffizienzhaus 40 Standard errichtet und erfüllt
somit höchste Ansprüche an Energieeffizienz und Nachhaltigkeit. Das QNG-Siegel (Qualitätssiegel
Nachhaltiges Gebäude) bestätigt die umweltfreundliche Bauweise und sorgt für niedrige Betriebskosten.
Lage
Emden: Eine Perle an der NordseeküsteWillkommen in Emden, einer charmanten Stadt, die Tradition und Moderne auf harmonische Weise vereint. Gelegen an der Nordseeküste, bietet Emden nicht nur eine idyllische Landschaft, sondern auch ein reichhaltiges kulturelles Erbe und eine hervorragende Lebensqualität.
Lebensqualität und Infrastruktur
Emden überzeugt durch ihre hervorragende Infrastruktur. Mit gut ausgebauten Verkehrsverbindungen, sowohl für Auto- als auch für Bahnreisende, ist die Stadt bestens erreichbar. Einkaufsmöglichkeiten, Schulen und medizinische Einrichtungen sind in unmittelbarer Nähe und gewährleisten einen hohen Lebensstandard.
Kulturelle Vielfalt
Die Stadt ist bekannt für ihre vielfältigen Freizeitmöglichkeiten. Museen, Kunstgalerien und historische Sehenswürdigkeiten, wie das Emder Rathaus und die sehenswerte Alte Kirche, laden zu Erkundungen ein. Die jährlichen Veranstaltungen, wie das Emder Stadtfest und der Weihnachtsmarkt, bringen das Gemeinschaftsleben in der Stadt zum Blühen.
Natur und Erholung
Die Lage am Wasser und die umliegende Natur bieten zahlreiche Möglichkeiten für Outdoor-Aktivitäten. Ob Radfahren entlang der Ems, Spaziergänge im Grünen oder Ausflüge zu den nahegelegenen Inseln – Emden ist ein Ort, der sowohl Ruhe als auch Abenteuer bietet.
Karte
Ausstattung
Dieses Penthouse zeichnet sich durch folgende Ausstattungsmerkmale aus:- KfW 40 QNG- Zertifikat
- KfW Mittel von 150.000 € mit einem effektivem Zins von 1,66 % p.a. können übernommen werden
- Übergabe schlüsselfertig und Zahlung nach Fertigstellung im 04.2026
- PV-Anlage
- Luft-Wasser-Wärmepumpe
- Beheizung der Räume mittels Fußbodenheizung
- inkl. hochwertiger Einbauküche mit Kochinsel
- inkl. elektrischer Jalousien
- inkl. Fahrradunterstand
- Fahrstuhlanlage mit direktem Penthouse Zugang
- hochwertige Ausstattung der Wohnungen
- maximaler Wohnkomfort durch lichtdurchflutete Räume
- diesem Penthouse sind zwei Pkw-Stellplätze zugeordnet
Fertigstellung April 2026.
NEU seit 2023: mit einer sog. QNG-Zertifizierung können Sie für Mietwohnungsneubauten die Sonderabschreibung nach § 7b EStG mit 5 % für vier Jahre und die neue degressive Abschreibung nach § 7 Abs. 5a EStG mit 5 % kombiniert in Anspruch nehmen, die Abschreibung nach § 7 Abs. 5a EStG mit 5 % wird vom Restwert vorgenommen, so dass in den ersten 4 Jahren ca. 37 % der Herstellungskosten abgeschrieben werden. Für die ersten 10 Jahre beträgt das Abschreibungsvolumen ca. 53,75 %
Sonstige Angaben
Durch den KfW 40 und QNG Standard profitieren Sie von den aktuellen KfW Kreditkonditionen, von der steuerlichen Abschreibung (AfA) und einer zusätzlichen Sonderabschreibung. Sollten Sie Ihre Steuerlast optimieren wollen, ergibt sich in den ersten vier Jahren jedes Jahr eine kombinierte Abschreibung aus der degressiven AfA und der Sonderabschreibung von ca. 10 % auf die Herstellungskosten bezogen auf den jeweiligen Restwert Ihrer Immobilie.Sprechen Sie uns gerne an, wir stellen mit Ihnen die notwendigen Unterlagen für Ihre Bank und Ihren Steuerberater zusammen. Die PL Living Immobilien und Handels GmbH übernimmt keine steuerrechtliche Beratung. Begleitet Sie aber gerne zu Ihrem Steuerberater oder stellt eine Empfehlung aus unserem umfangreichen Netzwerk an Beratern aus.
Als Immobilienmakler sind wir nach dem Geldwäschegesetz (GWG) verpflichtet, Vertragspartner mittels gültigen amtlichen Ausweises, der ein Lichtbild enthält und mit dem die Pass- und Ausweispflicht im Inland erfüllt wird, zu identifizieren. Bitte haben Sie daher dafür Verständnis, dass wir spätestens beim Besichtigungstermin eine Ablichtung Ihres Personalausweises benötigen. Gemäß § 11 Abs. 2 GWG hat diese Identifizierung zu erfolgen, sobald die Parteien des avisierten Kaufvertrages ernsthaftes Interesse am Abschluss haben.
Die Objektdaten, die sie in unserem Exposé finden, stammen vom Eigentümer. Eine Gewähr für die Richtigkeit und Vollständigkeit der Angaben können wir nicht übernehmen. Die Bilder sind somit rechtlich nicht bindend und nicht Bestandteil des Kaufvertrages. Änderungen und Irrtümer sind vorbehalten. Eine Gewähr für die Richtigkeit und Vollständigkeit der Angaben können wir nicht übernehmen.
Der Maklervertrag mit uns kommt durch schriftliche Vereinbarung oder durch die Inanspruchnahme unserer Maklertätigkeit zustande. Die Höhe der Provision liegt bei 5,95 % inkl. gesetzl. MwSt. für jeweils den Käufer und Verkäufer und ist mit dem notariellen Kaufvertragsabschluß verdient und fällig
Jetzt Exposé anfordern!
Seiten: 1